verbouwing
De weg naar vernieuwing begon in 2019 toen de werkgroep MFA De Stek, bestaande uit Karel van der Velden, Willie Geurts, Wim Lucas, en Peter Thijssen, inwoners van Landhorst uitnodigde om mee te praten over de toekomst van De Stek. Een enquête in juli 2018 vormde de basis voor deze discussie, waarbij de gemeenschap haar voorkeuren uitte. Met de resultaten in handen werd op 11 september 2019 een uitnodiging gestuurd, en dit markeerde het begin van een ambitieus traject.

In 2020 werd de projectaanvraag voor MFA De Stek ingediend, en op 18 september van dat jaar stemde de Raad unaniem in, waarmee de eerste grote stap naar vernieuwing werd gezet. Vervolgens begon de werkgroep aan de Dorpsontwikkelingsplannen gemeente Sint Anthonis om te zorgen voor een robuuste woongemeenschap in het nieuwe Land van Cuijk. In 2021 brachten HAN-studenten hun frisse perspectieven in het spel door een grondige analyse te maken van de behoeften van Landhorst.
De werkgroep benaderde architecten van B2 Architecten, die eind 2021 met een schetsontwerp op de proppen kwamen. Hierover werd tevens een presentatie gehouden voor het publiek. Gesprekken met aannemers in 2023 resulteerden uiteindelijk in de keuze voor Van der Horst Aannemers uit Mill als partner voor de definitieve verbouwing. Dit bleek een mijlpaal, maar niet zonder uitdagingen. In september 2023 kwam het onverwachte nieuws dat de gemeente de gymzaal niet wilde behouden. Na beraad met het bestuur van De Stek werd dit besluit aanvaard, en de plannen werden geherstructureerd.
Terwijl deze aanpassingen werden doorgevoerd, voerde Tahmina Hakami in 2022 grondig onderzoek uit naar de bouwkundige staat van De Stek, inclusief een energielabel en relevante onderzoeken. De Minor van HAN-studenten leverde waardevolle inzichten op, waardoor het projectteam de behoeften van Landhorst nog beter kon afstemmen.

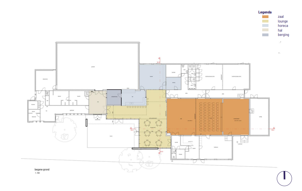
De laatste horde zal worden genomen met de definitieve plannen, die op 30 januari 2024 aan het publiek werd gepresenteerd tijdens een inloopavond. Een symbolische afsluiting van een intensief, maar hoopvol proces.
De vernieuwing van De Stek staat symbool voor de veerkracht en betrokkenheid van de Landhorst-gemeenschap. Van enquêtes tot uitdagende besluiten, het proces heeft geleid tot een gedegen plan voor een eigentijdse en functionele voorziening. Nu begint een nieuw hoofdstuk, waarin De Stek zal uitgroeien tot een levendige plek die de gemeenschap verbindt en koestert. De betrokkenheid van allen, van werkgroep tot studenten, heeft dit mogelijk gemaakt, en de toekomst van De Stek ziet er stralend uit.